Zoning Analysis

Before a project starts, the team needs a thorough understanding of the current zoning requirements as well as modifications that might be requested by the community and the architect.

This is a zoning analysis by Wallace Roberts and Todd for a project in Key Bicayne for a hotel. The analysis was requested so that the city and the community could better understand the current zoning regulations, a citizen proposal and what WRT, as experts in the field, would recommend.

For this I worked under the direction of the lead WRT architect and planner Silvia Vargas to derive a recommendation and to make it understandable by making the recommendations graphical.

Making the Options Clear

The goal is through a series of explorations and comparisons help people see complex regulations simultaneously with their impact.

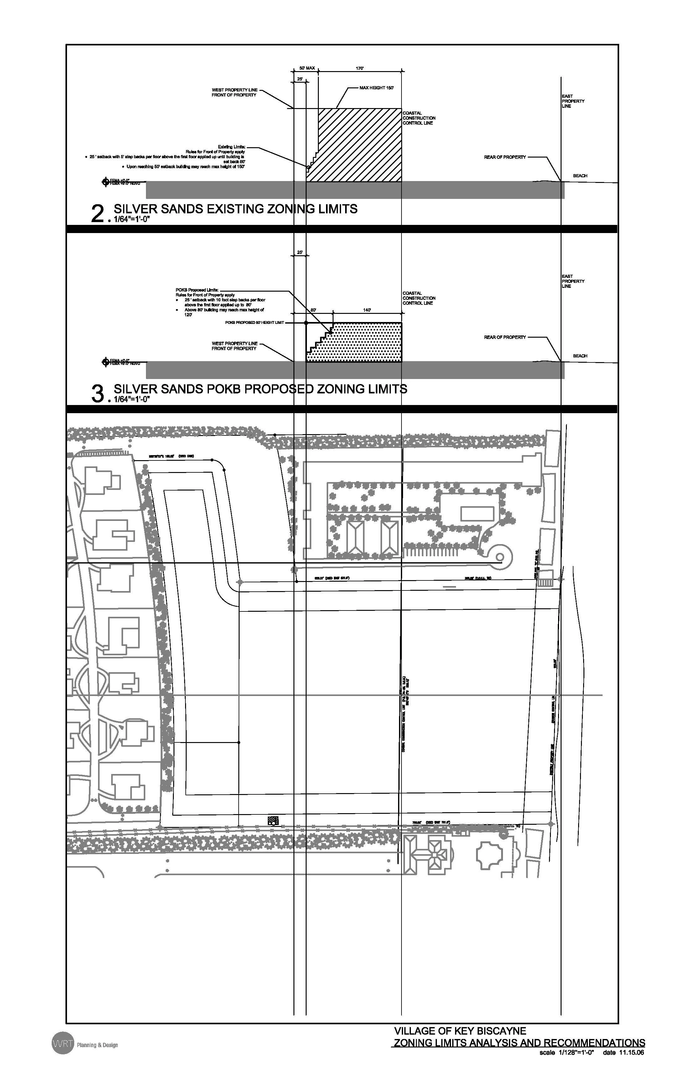
In this image you are not seeing buildings. You are seeing three options for envelopes a hotel needs to fit under. And you are seeing examples of the houses across the street. The difference in scale is immense.

  • The existing zoning allows a hotel to quickly go to full height after a brief series of set backs.

  • The citizen option, POKB, aggressively moves the building away from the houses as much as possible. But it is an extreme move that makes it difficult for the hotel to have a positive presence on the street. It creates a large parking lot across from the houses.

  • WRT’s solution is to allow a low height building along the street with a taller building behind.

More Details

The options are explored in detail in an internal presentation titled “VILLAGE OF KEY BISCAYNE - HOTEL RESORT ZONING DISTRICT ANALYSIS” and included detailed site specific analysis of the zoning envelope.

The options here are from a draft deck of the presentation, and are not the final illustrations delivered to the client.

Height Envelopes

Central to the zoning requirements were the proposed allowable heights. In text the requirements were complex and hard to follow. But turned into illustrations of the lots seen from the side, it was much easier to see how the zoning requirements would shape a proposed building and in turn affect how the building might be perceived from the street and from the houses across from it.

Envelopes and Plans

It was important that everyone involved understood what was being presented. So first the envelopes had to be understood on their own as I showed in the above section.

And then it was essential to represent them again but next to the land parcel so that relationship could be understood.

Shared Understanding

The style of the presentations helped citizens, government officials and the WRT planners and architects have a common understanding. It was as if everyone was given a new language that they shared. As a result the zoning requirements could be more easily discussed and a common solution reached.

Previous
Previous

Construction and Restoration