Limited Term Public Housing at Warnock

Leaving environments of duress and seeking refuge for 12-18 months until long-term stable housing is found, the primary user for the LTPH in Philadelphia’s Warnock neighborhood was looking for both simple housing and housing that also gave them dignity.

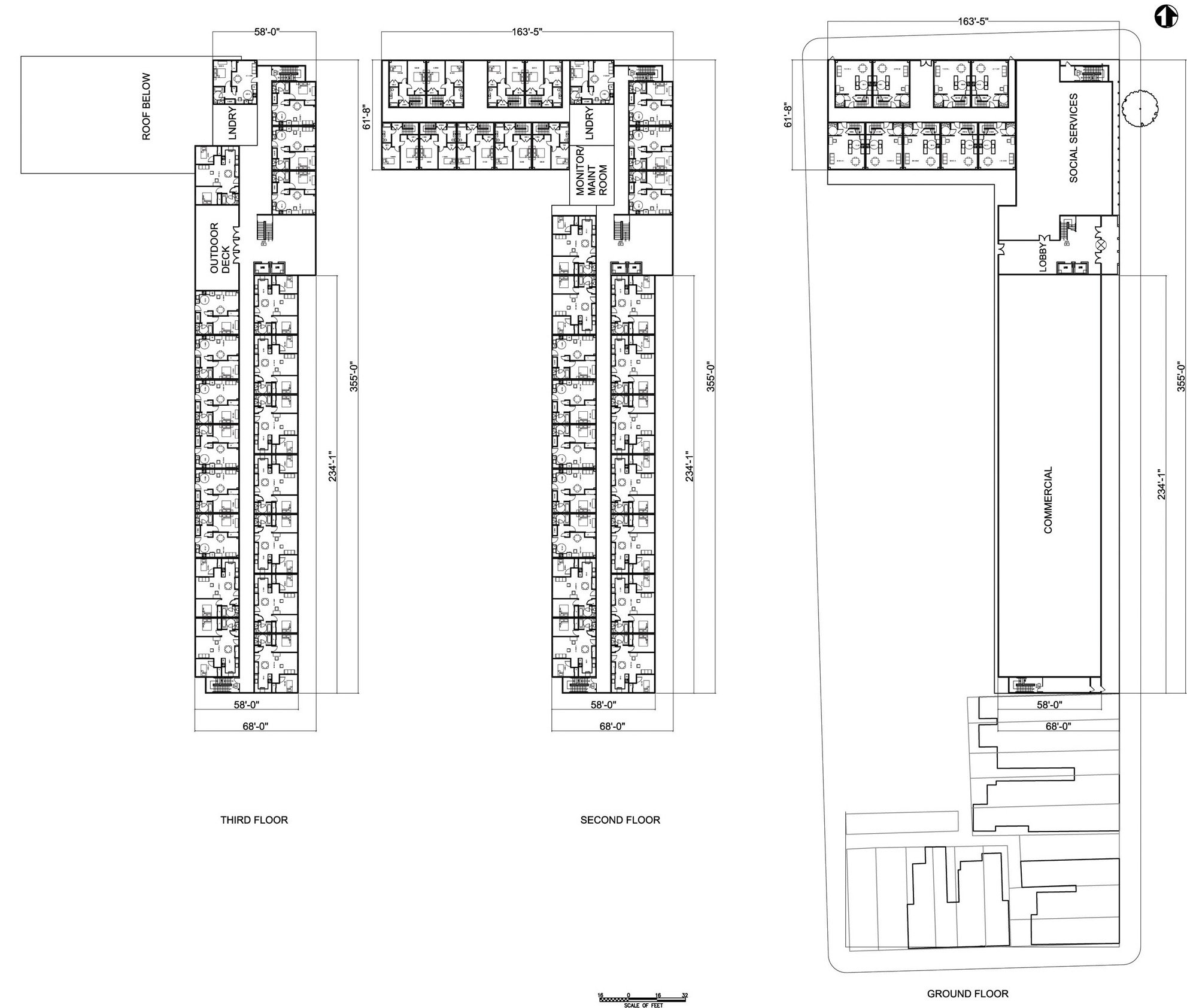
I was the solo designer at Wallace, Roberts and Todd doing design explorations for the Philadelphia Housing Authority’s planned LTPH project at Warnock in Philadelphia.

Multi-Use

It started as a simple housing project that included social services to a project that would support the neighborhood with commercial space as well.

Swedish Foundations

The neighborhood we were building in was also called the “Fairhill Neighborhood” after the original Swedish settlement here. You can still see a Swedish aesthetic in some of the older buildings in the area.

So I leveraged elements of that style by creating tall proportioned windows, small rooftop dormers and proportionally tall ground floors.

Home

The aesthetic direction I chose also allowed me to explore an effect that might be warmer and more respectful of the people living there than traditionally institutional approaches to housing.

Also strove to make the design parti clarify the organization of the building.

Danger

The Fairhill Neighborhood is ranked the 3rd or 4th most dangerous neighborhood in Philadelphia. From my studies one of the most potent deterrents to violence is having eyes on the street. To this end I chose to create an open windowed facade that ran along the street rather than deigning a closed facade and a structure that turned its back on the street and surrounded an internal courtyard.

Design for People

I used personas and narratives to help me create a robust program for who we were building for. The personas through a sharp light on their life circumstances and what they needed from the LTPH.

The results were rich and had impact on the program. One critical element that the narratives showed was the need for large central locked storage areas to hold household furnishings and personal belongings for these uprooted people.

The narratives also suggested the need for imprintability - this included the ability for our users to modify their spaces and decorate them. So I designed rooms for flexible layouts.

Previous
Previous

AARP and Shelter WF Community Competition

Next
Next

Transit Oriented Development